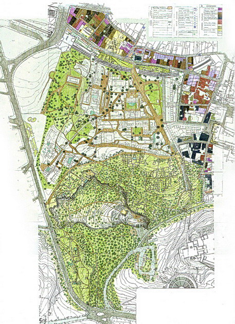
Η Ενοποίηση των αρχαιολογιών χώρων, ξεκίνησε σαν ένα φιλόδοξο σχέδιο, που στην πορεία περιορίστηκε δραματικά. Η ανάδειξη της αρχαίας αγοράς αφορούσε ένα πολύ μεγάλο τμήμα της συνολικής περιοχής επέμβασης που περιλάμβανε το πρόγραμμα της Ενοποίησης Αρχαιολογικών Χώρων Αθήνας. Ο αρχαιολογικός αυτός χώρος παρουσιάζει εξαιρετικό ενδιαφέρον λόγω του μεγάλου αριθμού σημαντικών μνημείων και αρχαίων διαδρομών που έχουν αναδειχθεί κατά κύριο λόγο από τις ανασκαφές της Αμερικάνικςη Σχολής Κλασσικών Σπουδών. Τα μνημεία κατανέμονται από τον 6ο αιώνα π.χ μέχρι και τον 5ο αιώνα μ.χ ακόμη και μέχρι τους Βυζαντινούς χρόνους.
Η διαχείριση αρχαιολογικών χώρων αυτής της κλίμακας και η σχέση τους με την πόλη αποτελούσε για την εποχή εκείνη ένα θέμα πρωτοφανές και εξαιρετικά δύσκολο για τα Ελληνικά δεδομένα, στο βαθμό μάλιστα που οι αρχικές προδιαγραφές και απαιτήσεις του έργου ήταν υψηλού επιπέδου.
ΑΠΟΤΥΠΩΣΗ ΤΡΑΥΛΟΥ
Το αντικείμενο της μελέτης αφορούσε :
1. Την αποτύπωση της υπάρχουσας κατάστασης
Η ΑΝΑΣΚΑΦΗ ΤΟΥ DORPFELD (ΕΝΝΕΑΚΡΟΥΝΟΣ)
2. Την αρχαιολογική και αρχιτεκτονική τεκμηρίωση των υπαρχόντων μνημείων και τον εντοπισμό των θέσεων όπου θα μπορούσαν να επεκταθούν οι ανασκαφές.
3. Τον επαναπροσδιορiσμό των ορίων και των εισόδων των αρχαιολογικών χώρων, με παράλληλη εξασφάλιση της υποδοχής, ενημέρωσης και εξυπηρέτησης των επισκεπτών.
4. Την επεξεργασία της κίνησης των επισκεπτών, με τον προσδιορισμό των διαδρομών και των χώρων θέασης – στάσης, έτσι ώστε ο επισκέπτης να εισπράττει την συνολική εικόνα των υπαρχόντων αρχαίων.
Ο ΑΓΙΟΣ ΔΙΟΝΥΣΙΟΣ – ΑΡΧΙΕΠΙΣΚΟΠΕΙΟ
ΤΟ ΕΛΕΥΣΙΝΙΟ
5.Την προστασία και αναβάθμιση της αντιληπτικής εικόνας των αρχαίων με την παράλληλη απομάκρυνση βλαπτικών στοιχείων όπως δένδρα και πιθανή ένταξη στεγάστρων προστασίας.
6. Τις επεμβάσεις στα όρια των αρχαιολογιών χώρων που αφορούν την διαμόρφωση πεζοδρόμων. Το μεγαλύτερο μέρος των ορίων καλύπτει η Αποστόλου Παύλου που είχε προβλεφθεί να πεζοδρομηθεί. Ενδιαφέρον όμως έχει η πρόταση της ένταξης δύο γεφυρών στην, προς πεζοδρόμηση τότε, οδό Αδριανού προκειμένου να εξασφαλιστεί η συνέχεια του αρχαιολογικού χώρου.
7. Τις επεμβάσεις στο περιβάλλον του αρχαιολογικού χώρου, πλατείες, πεζόδρομοι, πεζοδρόμια, αποκατάσταση όψεων κτιρίων.
8. Την πρόταση ειδικών όρων δόμησης και την θέσπιση ειδικών αρχιτεκτονικών και κτιριοδομικών κανονισμών.
9. Τέλος την φυτοτεχνική επεξεργασία.
Από όλα αυτά τα θέματα που επεξεργαστήκαμε επί χρόνια για τη πραγματοποίηση αυτού του έργου, ελάχιστες μόνο επεμβάσεις πραγματοποιήθηκαν και συνοψίζονται στην επίσημη περιγραφή του Γραφείου Ενοποίησης Αρχαιολογικών Χώρων που αναφέρει, επισυνάπτοντας τις δύο ακόλουθες φωτογραφίες:
“Αντικείμενο του Έργου είναι η κατασκευή της διαμόρφωσης πλατωμάτων Εισόδων του Αρχαιολογικού Χώρου της Αρχαίας Αγοράς (επί της οδού Αδριανού και στο πλακόστρωτο Πικιώνη προς την Ακρόπολη) και η κατασκευή νέας περίφραξης επί της οδού Αδριανού με βάση από οπλισμένο σκυρόδεμα και σιδηρά κιγκλιδώματα, όπως επίσης και το σύνολο των Ηλεκτρομηχανολογικών Εγκαταστάσεων.”
ΕΝΟΠΟΙΗΣΗ ΑΡΧΑΙΟΛΟΓΙΚΩΝ ΧΩΡΩΝ – ΑΝΑΔΕΙΞΗ ΤΗΣ ΑΡΧΑΙΑΣ ΑΓΟΡΑΣ
ΤΟΠΟΣ: ΑΡΧΑΙΟΛΟΓΙΚΟΣ ΧΩΡΟΣ ΑΘΗΝΑ
ΧΡΟΝΟΣ: 1996
ΑΝΑΘΕΣΗ: ΥΠΟΥΡΓΕΙΟ ΠΟΛΙΤΙΣΜΟΥ
ΟΜΑΔΑ ΜΕΛΕΤΗΣ:
ΑΡΧΙΤΕΚΤΟΝΙΚΗ ΜΕΛΕΤΗ:
ΓΙΩΡΓΟΣ ΑΝΔΡΕΑΔΗΣ, ΣΟΥΖΑΝΑ ΑΝΤΩΝΑΚΑΚΗ, ΑΡΙΣΤΕΙΔΗΣ ΑΝΤΩΝΑΚΑΚΗΣ, ΔΗΜΗΤΡΗΣ ΑΝΤΩΝΑΚΑΚΗΣ, ΦΟΙΒΗ ΓΙΑΝΝΙΣΗ, ΜΑΝΟΣ ΠΕΡΡΑΚΗΣ, ΓΙΩΡΓΟΣ ΤΡΙΑΝΤΑΦΥΛΛΟΥ, ΓΙΑΝΝΗΣ ΤΣΙΩΜΗΣ, αρχιτέκτονες
ΓΡΑΦΕΙΑ:
1. Α66 ΕΡΓΑΣΤΗΡΙΟ ΑΡΧΙΤΕΚΤΟΝΙΚΗΣ ΑΝΤΩΝΑΚΑΚΗ & ΣΙΑ Ο.Ε.
2. ΑΡΧΙΤΕΚΤΟΝΙΚΟ ΓΡΑΦΕΙΟ ΜΕΛΕΤΩΝ ΜΑΝΟΣ ΠΕΡΡΑΚΗΣ ΚΑΙ ΣΥΝΕΡΓΑΤΕΣ, σε συνεργασία με ΓΡΑΦΕΙΟ ΑΡΧΙΤΕΚΤΟΝΙΚΩΝ ΜΕΛΕΤΩΝ ΓΙΩΡΓΟΣ ΤΡΙΑΝΤΑΦΥΛΛΟΥ ΚΑΙ ΣΥΝΕΡΓΑΤΕΣ
3. ΑΡΧΙΤΕΚΤΟΝΙΚΟ ΚΑΙ ΠΟΛΕΟΔΟΜΙΚΟ ΓΡΑΦΕΙΟ ΓΙΑΝΝΗΣ ΤΣΙΩΜΗΣ ΚΑΙ ΣΥΝΕΡΓΑΤΕΣ
ΣΤΑΤΙΚΗ ΜΕΛΕΤΗ: ΣΠΥΡΟΣ ΚΟΥΝΑΔΗΣ, πολιτικός μηχανικός
Η/Μ ΜΕΛΕΤΗ: Π.ΚΕΡΧΟΥΛΑΣ ΚΑΙ ΣΥΝΕΡΓΑΤΕΣ Ε.Ε., ηλεκτρολόγοι μηχανικοί
ΤΟΠΟΓΡΑΦΙΚΗ ΜΕΛΕΤΗ: ΔΗΜΗΤΡΗΣ Θ.ΖΑΡΚΑΔΟΥΚΑΣ, αγρονόμος τοπογράφος















